Projektová dokumentace zahrady: přesný plán pro hladkou realizaci
Projektová dokumentace je krok, ve kterém se návrh zahrady mění v konkrétní a realizovatelný plán.
Navazuje na studii zahrady nebo na jasně definované zadání investora a umožňuje přesně stanovit cenu, postup prací i technické řešení.
Bez kvalitní projektové dokumentace není možné zahradu realizovat efektivně, bez improvizací a zbytečných vícenákladů.
Co je projektová dokumentace zahrady
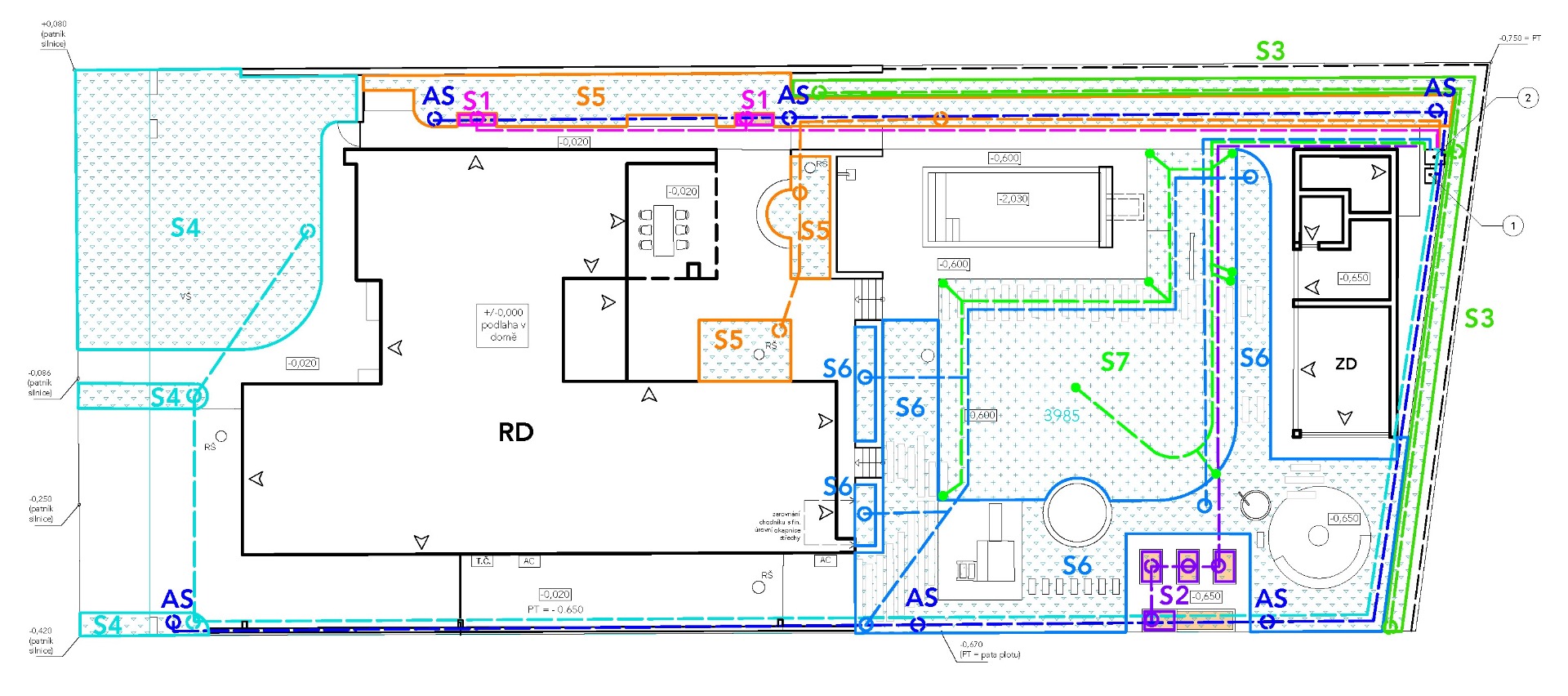
Projektová dokumentace je detailní technický podklad pro realizaci zahrady.
Řeší přesné rozměry, materiály, technologické postupy a návaznosti jednotlivých prvků tak, aby realizace proběhla hladce a bez nečekaných změn.
Je nezbytná zejména tehdy, pokud:
-
plánujete kompletní realizaci zahrady
-
chcete znát přesnou cenu před zahájením prací
-
očekáváte koordinaci více profesí
-
kladete důraz na detail, kvalitu a dlouhodobou funkčnost
Co projektová dokumentace obsahuje
Podrobnou technickou dokumentaci
-
přesné rozměry a výškové řešení
-
specifikaci materiálů a povrchů
-
podklady pro instalace (závlaha, osvětlení, vodní prvky, bazény apod.)
-
řezy a technické detaily
-
technologické a realizační postupy
přesné rozměry a výškové řešení
specifikaci materiálů a povrchů
podklady pro instalace (závlaha, osvětlení, vodní prvky, bazény apod.)
řezy a technické detaily
technologické a realizační postupy


Harmonogram prací
-
logická posloupnost jednotlivých etap
-
návaznosti profesí
-
přehledný plán realizace
logická posloupnost jednotlivých etap
návaznosti profesí
přehledný plán realizace
Rozpočet
-
realistická cena podle přesného rozsahu a materiálů
-
položkový rozklad ceny
-
přesné plánování investice bez kompromisů
realistická cena podle přesného rozsahu a materiálů
položkový rozklad ceny
přesné plánování investice bez kompromisů

Proč je projektová dokumentace klíčová
Projektová dokumentace:
-
eliminuje improvizace během realizace
-
minimalizuje riziko víceprací
-
umožňuje přesné nacenění
-
zajišťuje, že výsledná zahrada odpovídá schválenému návrhu
Je to nástroj, který chrání investora i realizační proces.
Studie zpravidla předchází projektové dokumentaci a slouží jako její obsahový základ.
Rozsah projektové přípravy je vždy posuzován individuálně podle konkrétní zahrady a míry připravenosti investora.
Projektová dokumentace řeší technické provedení a realizaci do detailu.
Podrobné vysvětlení rozdílů najdete v článku Studie vs. projektová dokumentace zahrady
Projektová dokumentace je klíčem k hladké realizaci a přesné ceně.
Zajišťuje, že zahrada bude provedena kvalitně, efektivně a přesně podle schváleného návrhu.

